Chata jako z pohádky. Pravda, trochu modernější. Stojí na kopci u lesa s krásnými výhledy. Fasáda je oblíbená varianta z modřínu, svody jsou skryté. Interiér je biodeska s bezbarvým nátěrem. Koupelna se opravdu povedla, použili jsme kompaktní desky a navíc je z ní vstup hned do infrasauny. Horní patro je jedna velká ložnice s úložným prostorem.
25m2
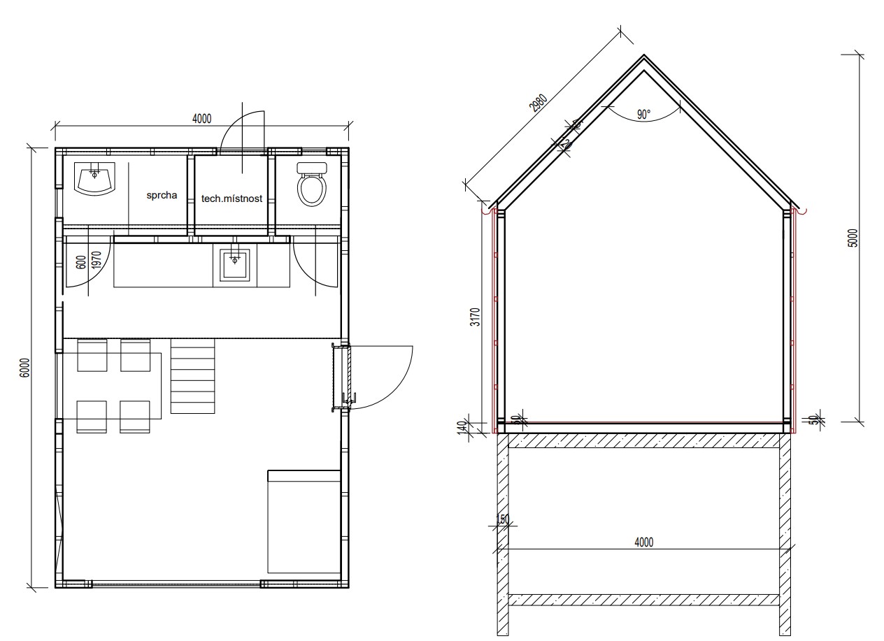
Rozměr 5x5m, výška 6m
CHATA S KRÁSNÝMI VÝHLEDY
CHALUPA ČERNVÍR
VELMI OBLÍBENÁ VARIANTA FASÁDY Z MODŘÍNU
Inspirujte se naší realizací, přidejte k ní pár svých vychytávek a sestavte si svůj tetrishouse. Těšíme se na vaše nápady.
Užíváme cookies, abychom vám zajistili co možná nejsnadnější použití našich webových stránek. Pokud budete nadále prohlížet naše stránky předpokládáme, že s použitím cookies souhlasíte. Zásady ochrany osobních údajůSouhlasímNesouhlasím