Na první pohled zaujme fasáda, kterou známe spíše z průmyslových hal. Tento materiál má skvělé izolační vlastnosti, má rychlou montáž a nevyžaduje žádnou údržbu.
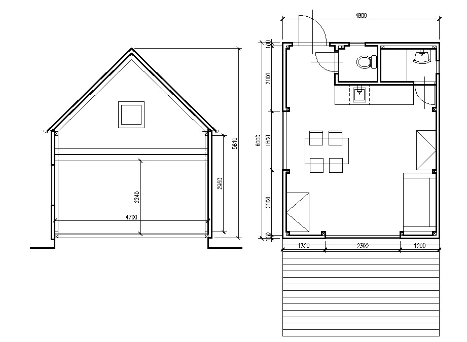
Délka: 6m Šířka: 5m Výška: 5,6m Plocha: 30m²
Letovice
moderní chata podle vašeho gusta
Letovice
Letovice jsou naše prvotina s PIR panely. Osvědčili se, máme na chatu super recenze. Nepotřebují žádnou údržbu, mají moderní vzhled. V části interiéru jsme nechali panely přiznané, za nás vypadají skvěle.
letovice
přiznané KVH hranoly a otevřený krov, budete milovat.
Inspirujte se naší realizací, přidejte k ní pár svých vychytávek a sestavte si svůj tetrishouse. Těšíme se na vaše nápady.
Užíváme cookies, abychom vám zajistili co možná nejsnadnější použití našich webových stránek. Pokud budete nadále prohlížet naše stránky předpokládáme, že s použitím cookies souhlasíte. Zásady ochrany osobních údajůSouhlasímNesouhlasím